Terrasse couverte avec salon et table à manger en bois, dallage clair, jardin paysager et vue dégagée sur le lac et les montagnes.
Terrasse et jardin paysager d’une villa neuve, avec façade en bois et enduit clair, mobilier de détente et lumière dorée sur les arbres.
Séjour-salle à manger contemporain et lumineux avec cuisine ouverte, parquet, mobilier beige et grandes baies vitrées donnant sur une terrasse et un paysage vallonné avec le lac au loin.
Séjour lumineux avec cuisine ouverte aux finitions beige et marbre, coin repas, salon meublé et grandes baies vitrées sur le jardin.
Vue extérieure de villas neuves avec façades claires, balcons en métal noir, panneaux solaires, terrasses meublées et jardin arboré baigné de lumière chaude.
Immeuble résidentiel neuf de trois niveaux avec façades claires, détails en bois, grands balcons, baies vitrées, panneaux solaires en toiture et jardin arboré en pente.
Chambre d’enfant lumineuse avec lit simple, mur en bois décoré d’étoiles et lune, rangements intégrés, bureau et parquet.
Grande chambre lumineuse aux tons naturels, avec lit double, bureau en bois, larges baies vitrées, balcon et vue dégagée.
Jongny

Résidence La Tuilière

Quatre villas neuves à vendre — Jongny, vue Lac Léman

La Résidence La Tuilière s’inscrit dans un environnement paisible et verdoyant, offrant un panorama exceptionnel sur le lac et les Alpes. Conçu comme un projet à taille humaine, l’ensemble se compose de quatre villas jumelles, imaginées pour mettre en valeur la vue tout en préservant l’intimité de chaque habitation. 

L’architecture se distingue par des lignes modernes et épurées, de larges baies vitrées favorisant la lumière naturelle et une transition harmonieuse entre l’intérieur et l’extérieur. Chaque villa dispose de terrasses, de balcons et de jardins privatifs, créant de véritables espaces de vie ouverts sur la nature.

Project details

Terrasse couverte avec salon et table à manger en bois, dallage clair, jardin paysager et vue dégagée sur le lac et les montagnes.

Situation

Nichée sur les flancs du Mont-Pèlerin, cette villa bénéficie d’un emplacement privilégié dans un cadre serein, à proximité immédiate des commodités.

Orientées sud-est, les habitations profitent d’un ensoleillement généreux tout au long de la journée, renforçant la sensation d’ouverture et de bien-être.

 

Vue extérieure de villas neuves avec façades claires, balcons en métal noir, panneaux solaires, terrasses meublées et jardin arboré baigné de lumière chaude.

Répartition des espaces

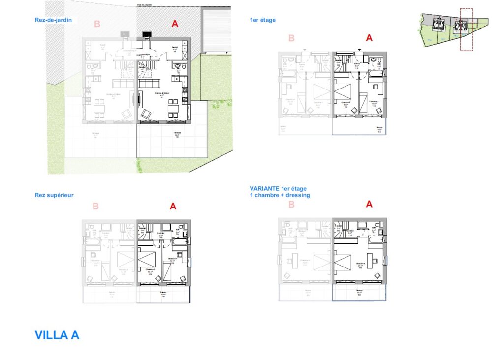
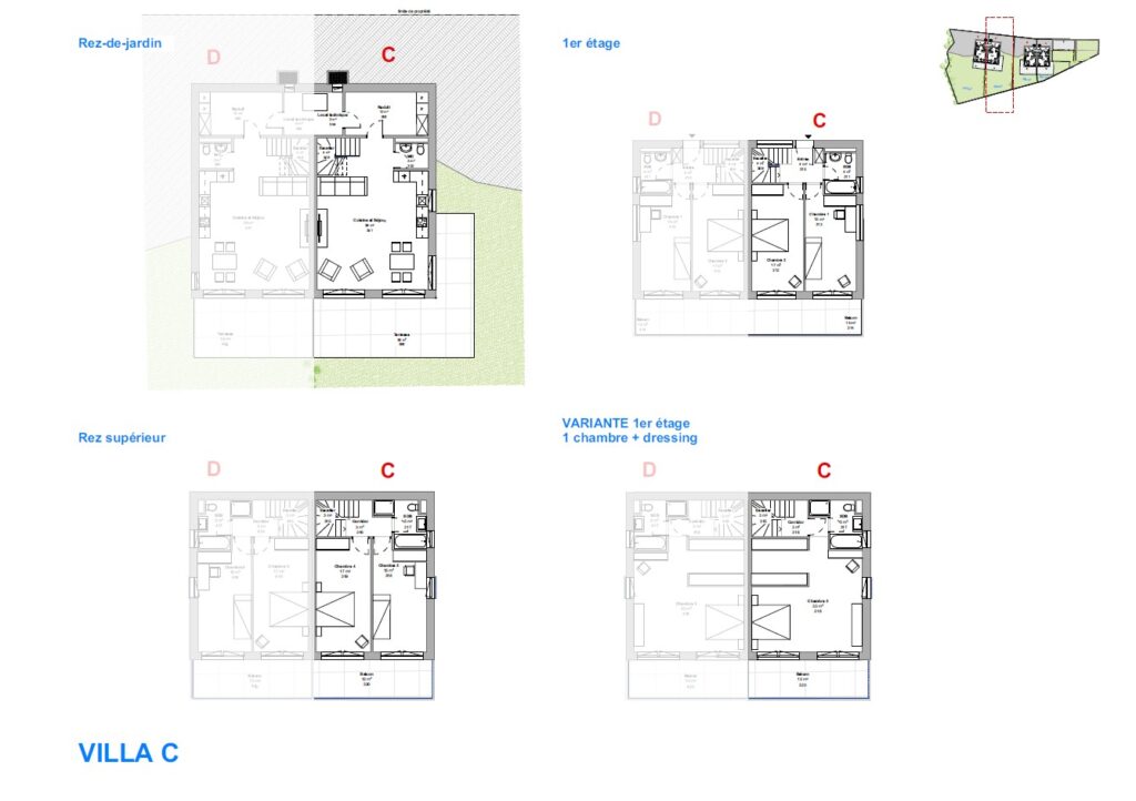
Chaque villa se déploie sur trois niveaux organisés pour favoriser la qualité de vie au quotidien. Le rez inférieur accueille un séjour convivial avec une cuisine ouverte, prolongé par une terrasse partiellement abritée et un jardin. 

Les étages supérieurs sont dédiés aux espaces de repos, offrant calme et intimité, avec ses 3 ou 4 chambres confortables. Une spacieuse suite parentale avec dressing et balcon occupe le dernier étage et bénéficie d’un panorama imprenable sur l’arc lémanique.

Icône noire d’une maison avec cheminée et deux fenêtres, superposée à un symbole dollar sur fond blanc.

Prix des villas

À partir de CHF 1 590 000

Icône noire d’un plan de canapé d’angle avec une table basse, symbolisant une surface en mètres carrés.

Surface habitable

130 m² – 145 m²

Plan schématique en noir et blanc d’un rez-de-chaussée avec plusieurs pièces et une cage d’escalier centrale.

Nombre de pieces

Flexible 4,5 à 5,5 pièces

Schéma noir et blanc d’une maison sur trois niveaux numérotés 1, 2 et 3, avec une fenêtre au 2e étage et une porte au rez-de-chaussée.

Niveaux

3 étages

Illustration d’une maison contemporaine avec balcon, terrasse meublée, escalier central et plantes en pots dans le jardin.

Extérieur privé

Terrasse, balcons et jardins

Garage individuel avec voiture stationnée devant une porte sectionnelle, allée centrale et deux plantes en pot.

Confort de stationnement

Garage avec espace extérieur supplémentaire

Situation

Un havre de paix résidentiel surplombant le lac Léman

Jongny séduit par l’équilibre harmonieux entre authenticité villageoise et accès rapide aux commodités urbaines. Son atmosphère paisible, la beauté de ses paysages et la richesse de sa vie locale en font un lieu de vie particulièrement recherché. Amateurs de nature, de gastronomie ou simplement de sérénité face au lac, chacun y trouve un environnement inspirant et chaleureux.

Surnommé le balcon du Léman, ce charmant village se distingue par sa proximité avec Vevey et sa situation au cœur du Lavaux, classé au patrimoine mondial de l’UNESCO.

 

Points of interestDistancesWalking timeBiking timeDriving timeBus time
Ecoles2 km20 min.7 min.4 min.17 min.
Arrêt de bus800 m13 min.5 min.2 min.
Commerces6 km20 min.12 min.30 min.
Autoroute6 km10 min.
Vevey5 km20 min.10 min.25 min.
Montreux13 km20 min.45 min.
Lausanne23 km30 min.50 min.

Les villas

Vue aérienne d’un petit ensemble résidentiel de deux immeubles neufs à toits équipés de panneaux solaires, entourés de jardins, d’arbres et de villas voisines.
Villa Pièces Surface Terrasse Balcon Jardin Surface PPE Prix Statut
Villa A 4.5 – 5.5 129 m² 39 m² 13 m² 202 m² 148.4 m² 1’530’000 CHF
Villa B 4.5 – 5.5 129 m² 38 m² 13 m² 283 m² 148 m² 1’590’000 CHF
Villa C 4.5 – 5.5 145.5 m² 35 m² 13 m² 394 m² 163.6 m² 1’590’000 CHF
Villa D 4.5 – 5.5 145.5 m² 19 m² 13 m² 610 m² 158.3 m² 1’560’000 CHF
Disponible Réservé Vendu
  • La configuration de chaque villa dépend de l’agencement choisi pour la zone nuit, offrant la possibilité d’avoir trois ou quatre chambres.
  • Chaque villa comprend un emplacement de garage privé ainsi qu’une place de parking extérieure. Une pré-installation pour la recharge des véhicules électriques est fournie.
  • Les cuisines sont livrées entièrement équipées avec des appareils intégrés. Les salles de bains comprennent une baignoire et une douche séparée, avec des installations sanitaires suspendues.
  • Des branchements pour lave-linge et sèche-linge sont fournis dans chaque villa.
  • Le promoteur se réserve le droit d’apporter des modifications mineures aux matériaux ou aux spécifications techniques, à condition que la qualité et les normes globales soient maintenues.

Nos partenaires

Contact

    Que vous soyez simplement curieux ou prêt à aller plus loin, écrivez-nous. Posez vos questions sur le projet, les disponibilités ou le déroulement.

    Nous lisons chaque message et répondons personnellement.